Skip to main content
English
Português
Home
About us
Services
Images
Videos
Contact
Home
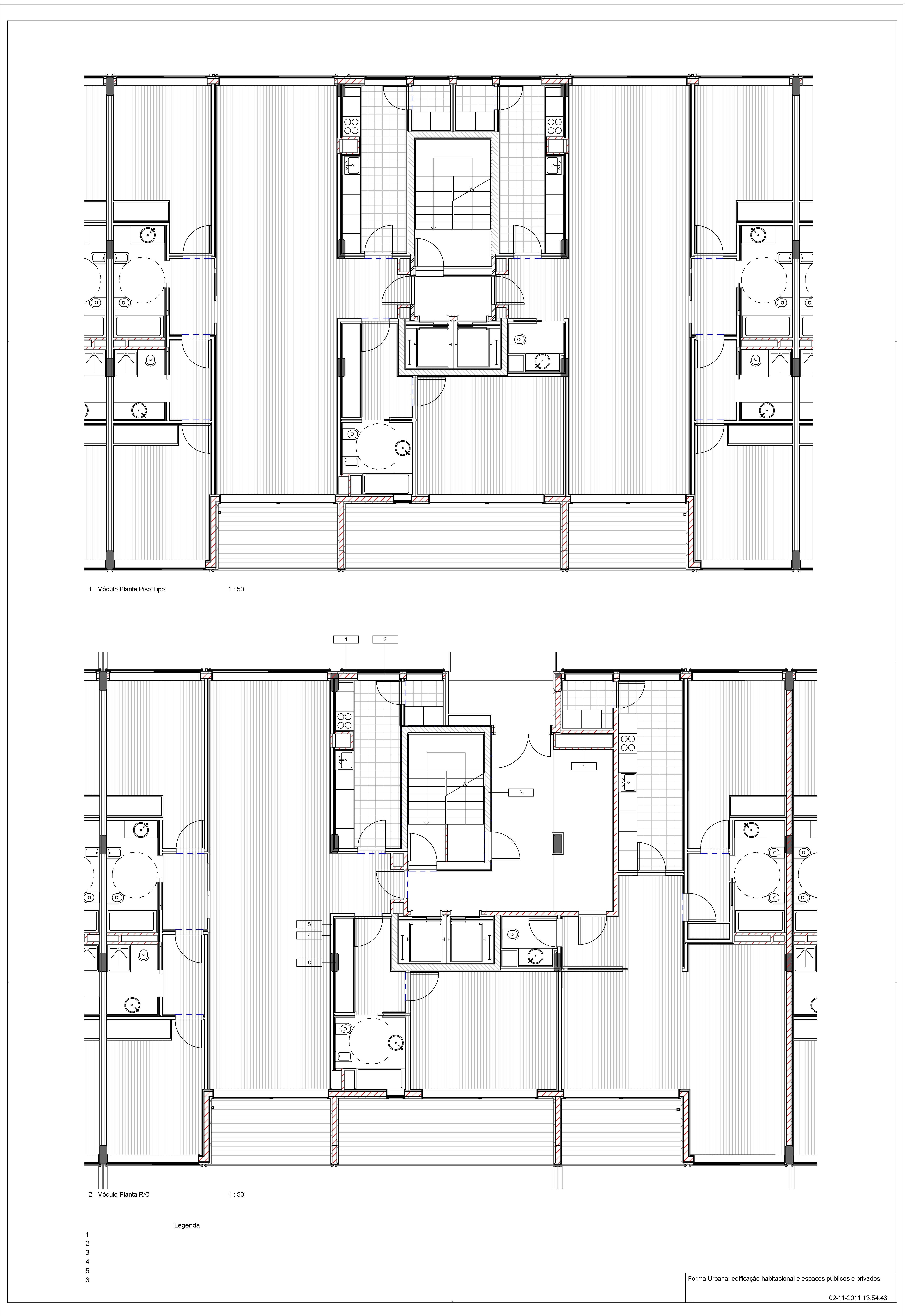
Mixed Use Building
Mixed Use Building
Mixed-use complex project in the city of Porto - residential and commercial.
Tags:
work
revit